INITIAL STUDY
ENVIRONMENTAL CHECKLIST

 

 

1.

Project Title:

PG&E North San Jose Capacity Project

(Application Number: A-98-06-001)

2.

Lead Agency Name and Address:

California Public Utilities Commission

505 Van Ness Avenue, Fourth Floor

San Francisco, CA 94102-3298

 

3.

Contact Person and Phone Number:

Judith Iklé

(415) 703-1486

 

4.

Project Location:

City of San Jose (see Figure 1)

City of Santa Clara

5.

Project Sponsor’s Name and Address:

Pacific Gas and Electric Company

P.O. Box 7442

San Francisco, CA 94120

Attn. Charles R. Lewis, IV

(415) 973-6610

6.

General Plan Designation:

 

7.

Zoning:

 

The proposed Nortech Substation is located in the City of San Jose. The General Plan designation is Light Industrial (LI) and the zoning is Industrial (I).

The Trimble-Nortech power line is located in the City of San Jose. The General Plan designations in areas crossed by the power line are Industrial Park (IP) and Light Industrial (LI). Adjacent areas to the power line include the preceding designations as well as Combined Industrial Commercial (CIC), Medium High Density Residential (MHDR), Very High Density Residential (VHDR), Public/Quasi-Public (P/Q-P), Public Park/Open Space (PP/OS) and Private/Open Space (P/S). The zoning designations include Industrial District (I), Residence District (R-3-B), Agricultural (A), Agricultural Planned District (A(PD)), Manufacturing District (M-4).

The Kifer-Nortech power line is located mostly in the City of Santa Clara and partly in the City of San Jose. City of Santa Clara General Plan designations for the area crossed by or adjacent to the power line include: Industrial Transition (IT) and Light Industrial (LI), Residential including Moderate Density (MoD), Single Family Detached (SFD), and Single Family Attached (SFA); and Public Facilities including Institutional (Inst), Urban Reserve (UR), Parks and Recreation (P&R) and Open Space (OS). The City of San Jose General Plan Designations include Light Industrial (LI) and Combined Industrial Commercial (CIC). The City of Santa Clara zoning for areas crossed by the power line includes Light Industrial (ML). The City of San Jose zoning is Industrial (I).

 

8.

Description of Project:

 

Purpose and Need


Pacific Gas and Electric Company (PG&E) proposes to build and operate a 115 kiloVolt (kV) - 21 kV distribution substation, called the Nortech Substation, and two 115 kV power lines in the Cities of San Jose and Santa Clara, California. The project is referred to as the North San Jose Capacity Project. The two 115 kV power lines would be constructed to bring energy to the new Nortech Substation from two existing facilities, the Kifer Receiving Station in Santa Clara, and the Trimble Substation in San Jose. The Trimble-Nortech 115 kV power line would be located in San Jose, and the Kifer-Nortech 115 kV power line would be located in both Santa Clara and San Jose. The locations of project facilities are shown in Figure 1, Project Location.

Growth in economic activity in northern Santa Clara County brings growth in electric demand. PG&E electric load studies indicate that, without immediate action, loads within the North San Jose 21 kV Distribution Planning Area (DPA) will exceed PG&E's existing substation capacity by the summer of 1999. The peak electric load for the North San Jose DPA was 153.8 MegaWatts (MW) in 1996 and 180.5 MW in 1997. This increase was mostly due to new block loads. Based on PG&E load growth projections, the area's electricity demand will grow 10.1 MW per year. In addition, PG&E estimates 113.6 MW of block loads and transfers during the next three years.

To meet part of the forecasted demand through 1998, PG&E is constructing the River Oaks 115 kV - 21 kV Substation on Center Street, adjacent to the Agnews Cogeneration Facility. This two-bank substation will be in operation by the summer of 1998, and will provide capacity for the northeastern portion of the DPA – that part north of River Oaks Drive.

While River Oaks will provide short-term relief, construction of the Nortech Substation and associated power lines would be required to provide additional capacity. PG&E's projected electric load deficiency in the North San Jose DPA after construction of the River Oaks Substation will be 48 MW in 1999 without construction of the Nortech Substation.

Project Description

The primary project facilities are as follows:

New Facilities

Nortech 115 kV – 21 kV Substation

Kifer - Nortech 115 kV power line

Trimble - Nortech 115 kV power line

Existing Facilities

Kifer 115 kV Receiving Station

Trimble 115 kV - 21 kV Substation

These facilities are described in more detail below.

Nortech 115 kV - 21 kV Substation (new)

At full build-out, the Nortech Substation would contain three 45 MVA 115 kV - 21 kV transformers, high voltage circuit breakers, disconnect and bypass switches, a 115 kV bus structure, two 115 kV pull off/dead-end structures and two 115 kV power line poles. The substation would also have a 100-foot-tall steel lattice microwave tower with two microwave dishes. The Nortech site would be fenced, lighted and landscaped. The substation also would have a paved driveway for internal circulation of vehicles.

The Nortech Substation would be designed as a three-bank substation, however only two banks may be installed in 1999. The third transformer would be installed when required by electric load growth. See Figure 2, Nortech 115 kV - 21 kV Substation, Plan View and Elevation, which shows the plan view and two elevations for the Nortech Substation.

Drainage inside the Nortech Substation would be designed to protect the equipment and move stormwater runoff out of the substation. The site would require approximately 20,000 cubic yards of fill to raise the site to an elevation of approximately 6 feet above the National Geodetic Vertical Datum (NGVD) to reduce the potential for flooding. Electrical equipment would be set above the 100-year flood elevation to provide for continuous operation during a flood.

The substation would include a 30-foot by 20-foot by 3-foot vertical walled concrete Spill Prevention Countermeasure and Control (SPCC) pond, located near the northern edge of the substation property. The pond's capacity of 11, 220 gallons would be 110% percent of the volume of the largest transformer, a safety factor to hold rainwater. The top of the pond would be at a minimum elevation of approximately 6 feet above NGVD. Rainfall will enter the pond via sheet flow. A berm would surround each piece of oil-filled equipment and a buried drainpipe would direct any oil leaks to the pond.

Evergreen shrubs would be planted, approximately five to six feet on center, as a screen along the outside perimeter of the chain link fence on the south and west sides of the substation. Several small trees would be planted along the south and west sides of the property to create additional screening.

A 100-foot-tall lattice steel microwave tower would be located on the substation property, adjacent to the substation switchgear building. The tower would have two microwave dishes and would serve to protect the substation and connecting power lines. In the event of a downed power line, high-speed relays would use the microwave system to open the appropriate circuit breakers before the power service could be degraded.

If flood waters rise above an elevation of 6 feet above NGVD, the Nortech Substation and its SPCC pond would be temporarily flooded. The substation would be constructed to continue to operate with floodwaters at an elevation of 9 feet above NGVD.

Substation electrical structures would generally range in height from 7 to 40 feet. The exception would be the microwave tower and two, 85-foot-tall, tubular steel poles that tap into the power line. These two poles would be on the substation property just south of the substation fence.

The substation would be designed for nine distribution feeders. Initially, four feeders, two from each of the two transformer banks, would be built in 1999. All distribution feeders would leave the Substation in underground conduits. The distribution feeder routes would be in public road right-of-ways, known as franchise areas, except as noted below.

- Feeder One would be routed north along Disk Court to Nortech Parkway, and would tie into existing underground facilities along Nortech Parkway to serve the immediate Nortech Business Park area.

- Feeder Two would be routed north along Disk Court up to Nortech Parkway. The new feeder would use existing underground facilities along Nortech Parkway and new underground facilities along Fortran Drive and Fortran Court to reach State Route 237 (SR 237). The feeder would cross under SR 237 in a new 15-inch bored casing and tie into existing underground facilities in Holger Way.

- Feeder Three would be routed south and then parallel to SR 237, then tie into existing overhead lines along North First Street. The line would serve the area south of SR 237.

- Feeder Four would be routed south to SR 237, then east along SR 237 in existing right-of-way to a point approximately 200 feet south of Fortran Court. The feeder then would cross SR 237, using the same casing as Feeder Two, and tie into existing underground facilities on Holger Way.

Kifer 115 kV Receiving Station (existing)

The Kifer Receiving Station is located on Comstock Street and Duane Avenue, near Lafayette Street, in the City of Santa Clara. One new 115 kV circuit breaker would be added at the existing substation. See Figure 3, Kifer Receiving Station, Plan View and Elevation.

Trimble 115 kV - 21 kV Substation (existing)

The Trimble Substation is located on Component Drive, just off North First Street, in the City of San Jose. One new 115 kV circuit breaker would be added at the existing substation. See Figure 4, Trimble Substation, Plan View and Elevation

Kifer - Nortech 115 kV Power Line (new)

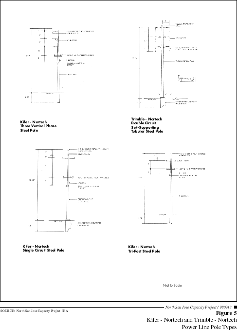
The power line would be a 115 kV single-circuit line built on light-duty steel poles and self-supporting tubular steel poles 60-90 feet in height. The approximate distance between poles would vary from 300 to 600 feet (300 to 450 feet for light duty steel poles and 500 to 600 feet for self-supporting tubular steel poles). The power line would require 11 new poles at new locations and approximately 57 new poles replacing existing poles.

The Kifer - Nortech power line route would be generally located along public roads and existing distribution line easements. Beginning at the Kifer Receiving Station and moving north across vacant land, the existing Kifer - Agnew 60 kV wood pole power line would be replaced by a steel pole 115 kV power line.

The new power line would follow the 60 kV alignment north, crossing Duane Avenue, which parallels Highway 101. After crossing Highway 101, the power line would follow Bassett Road to the point where Bassett Road intersects the South Pacific Railroad tracks. From that point the power line would angle northwest, across the railroad tracks to the east side of Lafayette Street. The power line would leave the 60 kV alignment at the entrance to the Agnews Developmental Center (West Campus) and continue north along the east side of Lafayette Street, along the City of Santa Clara's distribution line. The line would be entirely within the road franchise along Lafayette Street. The route would cross SR 237 where Lafayette Street becomes Gold Street.

Along Lafayette Street and Gold Street, the City of Santa Clara’s distribution line would be rebuilt to accommodate the new single-circuit 115 kV power line. After crossing SR 237, the route would angle east away from the distribution line and would cross the Guadalupe River. The 115 kV power line would continue to run east along the northern edge of the SR 237 right-of-way. The line would cross the interchange of SR 237 and North First Street and then would continue into the proposed Nortech Substation site.

Kifer - Nortech Power Poles

The proposed Kifer - Nortech power line would use a combination of structures designed to support a 115 kV single-circuit with distribution lines underneath. Poles would be of light-duty

steel and of self-supporting tubular steel. See Figure 5, Kifer-Nortech and Trimble-Nortech Power Line Poles.

Along Lafayette Street, the power line would be constructed on tri-post, light-duty steel poles. In areas where buildings are close to the conductors, the power poles would have a three vertical phase arrangement. The light-duty steel poles would be between 60 and 90 feet high, installed directly in the ground with spans of 300 to 450 feet.

Single-circuit galvanized steel poles with foundations and anchor bolts would be installed where the span would be 500 to 600 feet long or where a strong support structure is required. The steel poles will vary in height from 75 to 90 feet tall. Two of these poles would be installed at the Guadalupe River crossing, and one at each angle point along Lafayette Street and SR 237.

From Lafayette Street and SR 237 to the proposed Nortech Substation, the power line would be constructed using steel poles to support a single-circuit 115 kV line with a 21 kV distribution line position. This section would have approximately nine poles ranging from 66 to 85 feet tall.

Trimble - Nortech 115 kV Power Line (new)

The Trimble - Nortech 115 kV Power Line would be a double-circuit line constructed on self-supporting tubular steel poles, 80 to 95 feet in height. The approximate distance between the poles would range from 550 to 800 feet. The power line would require 19 new poles and 16 new poles that would replace existing poles.

The 115 kV power line would leave the Trimble Substation on the southeast side along Component Drive. At this point, the power line would join the existing Newark - Trimble 115 kV single-circuit power line, which would be reconstructed to a double-circuit configuration to accommodate both power lines from Trimble Substation to a proposed structure on the southeast corner of Trimble and Zanker Road (approximately 0.6 miles).

After leaving the Trimble Substation, the combined Newark - Trimble and Trimble - Nortech 115 kV power line would travel northwest along Component Drive and cross North First Street. From that point, the power line would angle northwest and continue along the east side of North First Street to Trimble Road. At Trimble Road, the power line would angle northeast and continue along the south side of Trimble Road within private easements. The lines, cross arms, and conductors would be within the road right-of-way, but existing underground infrastructure would preclude placing poles directly in the right-of-way.

At the intersection of Trimble and Zanker Road, the Trimble - Nortech 115 kV power line would angle northwest diverging from the Newark -Trimble 115 kV double circuit power line. From this point to the intersection of SR 237 and Zanker Road, the power line would be constructed on a new 115 kV double-circuit power line(1). The Trimble – Nortech 115 kV power line then would continue northwest along the eastern edge of the Zanker Road right-of-way to SR 237. As on Trimble Road, some conductors on Zanker Road would be within the road right-of-way; however, existing underground infrastructure precludes placing the poles within the right-of-way. The poles would be located on private property requiring new easements.

At the interchange of Zanker Road and SR 237, the power line would cross to the northwest corner of SR 237 and Zanker Road. From this point, the power line would rebuild an existing 21 kV distribution line with single circuit 115 kV and single circuit 21 kV west along the northern edge of the SR 237 right-of-way to the Nortech Substation site.

Trimble – Nortech Power Poles

From Trimble Substation to SR 237, the Trimble – Nortech power line would be constructed of double-circuit self-supporting tubular steel poles. The double circuit, self supporting tubular steel poles would be a combination of dead-end, angle, or suspension conductor configuration, depending on whether they are located at a substation, where the power line route makes an angle, or where the power line route travels in a straight line. See Figure 5, Kifer-Nortech and Trimble-Nortech Power Line Poles. The height of the poles would range from 85 to 95 feet with spans ranging from 550 to 800 feet with no down guy wires. The base of each of these poles would be attached to concrete foundations with embedded anchor bolts.

Along this route several existing poles would be removed or replaced,

- One existing wood pole on Component Drive would be removed.

- A new double-circuit self-supporting tubular steel pole (dead-end conductors) would be installed within the fenced boundaries of the Trimble Substation, off Component Drive.

- At the northeast corner of the intersection of Component Drive and North First Street, an existing single-circuit steel angle pole would be removed and replaced with a taller double circuit self-supporting tubular steel pole.

- Between Component Drive and Trimble Road along North First Street, two existing wood poles would be removed and replaced with double-circuit self-supporting tubular steel poles.

- Between North First Street and Zanker Road on Trimble Road, three existing single-circuit wood poles would be replaced with taller double-circuit self-supporting tubular steel poles.

Along Zanker Road from Trimble to Highway 237 the double-circuit tubular steel poles would be on private easements with some of the conductors overhanging the Zanker Road right-of-way.

From Zanker Road and SR 237 to the proposed Nortech Substation, the power line would use approximately nine steel poles, ranging in size from 66 to 85 feet tall, to support a single-circuit 115 kV line with a 21 kV distribution line position.

 

Project Construction Schedule and Workforce

Construction Schedule

PG&E anticipates that construction of the substation and associated power lines would begin in January 1999. The power lines would be constructed by two separate crews and would be completed within about five months. Substation construction, from site preparation and grading to energizing the electrical equipment, would take about five months. The installation of the required circuit breakers and taps at both the Trimble Substation and the Kifer Receiving Station would occur within the same five-month construction window.

Construction Workforce

During peak construction periods, approximately 70 workers would be on the workforce. Project workers would:

PG&E construction crews would build all power lines, as well as install new breakers at both Kifer Receiving Station and Trimble Substation. PG&E expects that an outside contractor would construct the Nortech Substation.

Project Construction Processes

Nortech 115 kV – 21 kV Substation

Construction of the Nortech substation would begin with clearing the site of vegetation and conducting site surveys. Approximately 3,800 cubic yards of spoil would be excavated and removed to landfill or suitable site as identified in the pre-construction soil analysis. Approximately 20,000 cubic yards of fill (including side slopes) would be imported to the site from a local source. The site would be graded to ensure that appropriate soil compaction and surface drainage requirements are met. A seven-foot-high chain link fence with a one-foot barbed wire outrigger would be installed around the perimeter of the substation.

Reinforced concrete footings and slabs would be constructed to support substation structures and equipment. Electric control cables would be installed in buried conduits. After the trenches are dug, conduit would be placed on a bed of sand, and then soil would be backfilled to match the adjacent grade.

A grounding mat or grid would be installed approximately 18 inches below the finished grade to ground all equipment and structures constructed inside the substation fence. Copper conductors, installed in the trenches, would be used in grounding equipment and structures.

Gravel or crushed rock, placed to a depth of approximately four inches, is essential for providing electrical isolation for maintenance and operations personnel. The gravel or crushed rock would also allow all-season access for maintenance and operation vehicles, and would inhibit weed growth. The substation service road would be constructed with two inches of asphaltic concrete over four inches of rock base material.

PG&E would install, own, and operate fiber optic and microwave communications for the protection of the substation and power lines. Fiber optic cable and microwave communications would be installed from Nortech Substation to both Trimble Substation and Kifer Receiving Station for primary and secondary high-speed relaying protection. The 100-foot-tall microwave tower would be located adjacent to the substation switchgear building.

Substation structures would be erected to support switches, electrical conductors, instrument transformers, and other electrical equipment, as well as to terminate incoming power lines. The welded tubular steel structures would be grounded to the grounding grid. All electrical equipment would be bolted or welded securely to the slabs or footings to meet seismic requirements.

Lighting would be installed for nighttime security and personal safety. Lights would be angled toward the interior of the site. Proper placement of lights and adequate physical separation between the lights and the fence line would be intended to prevent glare and intrusion on the adjacent property.

Kifer - Nortech and Trimble - Nortech Power Lines

Before power poles and conduits can be installed, the power line right-of-way would be cleared of trees and other vegetation that may interfere with the safe operation of the system. See Figure 6, Tree Trimming Clearances, Plan View and Elevation. Material from tree removal and trimming operations would be properly disposed of in a landfill.

In some areas along Zanker Road, existing utilities may be relocated to allow for placement of the steel pole foundations.

Laydown Areas

Two temporary laydown areas would be used for construction of the power lines. A four acre site on the north side of Kifer Receiving Station would be used for storage of conductor wheels and poles for the Kifer – Nortech power line. Part of the Nortech Substation site would be used as a laydown area for construction of the Trimble - Nortech power line.

Site Access

Construction and operation access for the power lines would be primarily along existing roads. In the urban areas, access for both the Kifer– and Trimble–Nortech power line routes would be along existing paved roads.

Along the Kifer – Nortech power line route, areas north of SR 237 are generally vacant. An existing 12-foot-wide dirt access road, which extends east from Gold Street to the West Bank of the Guadalupe River (approximately 0.3 miles) along the toe of the SR 237 embankment, would be used for construction access. Another existing 12-foot-wide dirt access road (approximately 0.4 miles) on the north side of SR 237 extending from the east bank of Guadalupe River to North First Street would be used during construction. Vacant areas west of Zanker, on the north side of SR 237, would be accessed by an existing 12-foot-wide dirt farm road.

Installation of Steel Poles

Placement of self-supporting steel poles would require a large auger to dig a foundation hole, approximately 5 feet in diameter by 16 feet deep. During construction, a small form would be made at the top of the hole to support the anchor bolts. A re-bar cage would be installed and concrete poured. In some locations adjacent to the Guadalupe River and in the vicinity of the Nortech Substation, poles would be set on concrete foundations. Foundation design would be done in accordance with criteria established by the CPUC’s General Order 95, "Rules for Overhead Electric Line Construction.". The tubular steel pole shafts would be delivered to each site in two sections, and assembled on the ground. The poles would then be erected using a crane and set on the anchor bolts in the concrete foundation.

Placement of light-duty steel poles also would require the use of a large auger to dig a hole, approximately 3 feet in diameter by 9–12 feet deep. The light-duty steel poles will also be delivered to the site in two sections, and assembled on the ground. The poles would be erected with a 10-ton crane, set in the hole, and backfilled. See Figure 7, Power Line Construction Procedures.

Installation of Conductors

To install the conductors, a steel wire would be fed through stringing sheaves at the end of each insulator on the standing poles. The steel wire then would be attached to the conductor, stripped off the wire reels through a tensioner, and pulled in at the other end with a puller. See again Figure 7, Power Line Construction Procedures.

Potential for Service Interruption

During construction of the Trimble-Nortech Power Line, the Montague-Trimble section of the Newark-Trimble 115 kV power line would be taken out of service while the line is rebuilt to a double circuit configuration. Power to the Trimble Substation would be temporarily fed from the Newark-San Jose "B" 115 kV power line.

During construction of the Kifer-Nortech Power Line, sections of the distribution circuits along this route would have service interruptions of a few hours while new poles are set and conductors transferred to the new poles. The following actions would be taken to minimize service interruptions:

- Where feasible, customers would be served from alternative sources.

- PG&E crews would work on distribution sections during times when customer service interruptions would be minimized.

- Temporary distribution service connections would be established to maintain service during construction.

- Sections of the distribution lines would be isolated with temporary switches to limit service interruptions to the least number of customers.

Project Operation and Maintenance Procedures

The operation of the Trimble - Nortech 115 kV Power Line and operation of the Kifer - Nortech 115 kV Power Line would be controlled by the Metcalf Switching Center, which is located at the Metcalf Substation, south of San Jose. The Nortech Substation monitoring and control functions also would be connected to the Metcalf Switching Center computer system, by means of the telecommunications link.

Each year, two patrols, one by ground and one by air, would check each power line for integrity. All structures would be inspected from the ground annually for corrosion, misalignment and excavations. Ground inspection would occur on selected lines to check the condition of the hardware, insulator keys and conductors. That inspection would check conductors and fixtures for corrosion, breaks, broken insulators and bad splices. All power lines would be inspected for sag. In addition, annual ground inspections would be performed on poles, anchors and right-of-way condition. Trimming of trees located under the power lines would be conducted in accordance with CPUC General Order No. 95.

Related Future Facilities Plans

PG&E’s current plans include construction of a new 230 kV transmission line into the north San Jose area in the year 2000. This is the Northeast San Jose Transmission Reinforcement Project. The new 230 kV transmission line would feed a new 230 kV - 115 kV transmission substation to be located in the north San Jose area. The 115 kV power lines from that transmission substation will need to connect to the system to provide power to the Montegue and Trimble Substations, and the Kifer Receiving Station. . The infrastructure for that connection will be provided by the North San Jose Capacity Project.

As part of the North San Jose Capacity Project, PG&E has included a second circuit on the Zanker Road power to allow the system to connect with the 230 kV Northeast San Jose Transmission Reinforcement Project. Without the second circuit along Zanker Road, that project would have to construct a separate power line to connect it with the system, adding additional and unnecessary costs and impacts. However, the distribution capacity provided by the North San Jose Capacity Project, as proposed, is required exclusive of the Northeast San Jose Transmission Reinforcement Project.

9.

Surrounding Land Uses and Setting:

 

The proposed Nortech Substation site is vacant land, adjacent to a parking lot used by the Jubilee Christian Center (church). The adjacent land to the south is the existing right of way for State Route 237. The site is bounded on the south by State Route 237, on the north by a parking lot, on the east by the North San Jose Technology Center, and on the west by vacant land.

Two power lines are proposed connecting the Nortech Substation to other substations in the area. The Trimble-Nortech power line is located in the City of San Jose passing through varied uses including light industrial/industrial park, public park/open space, quasi-public open space, private open space, commercial and very high density residential uses. The Kifer-Nortech power line is located in the City of Santa Clara and City of San Jose. It passes through uses designated as industrial uses, including light, heavy and industrial transition, residential uses, including moderate density, single family attached and single family detached residential, and public facilities land uses including institutional, open space, parks and recreation and urban reserve lands uses.

10.

Other public agencies whose approval is required

(e.g., permits, financing approval, or participation agreement)

 

Grading permits or "Notice of Exemption" would be obtained from the City of San Jose Department of Public Works and City of Santa Clara Public Works.

Street Tree Removal Permits would be obtained from the Cities of San Jose and Santa Clara for the removal of trees on public and private property.

Encroachment Permits would be obtained from the City of San Jose and from the City of Santa Clara for all construction work, including trenching, along the roadways in the cities.

Welding Permits would be obtained from the Cities of San Jose and Santa Clara.

Activity within the right-of-way of California highways (such as pulling wires across State Route 237 and U.S. Highway 101) would require an encroachment permit from Caltrans.

An Authority to Construct/Operate would be obtained from the Bay Area Air Quality Management District.

Power line construction would be on right-of-way easements on private property. Such easements would be obtained by negotiation with landowners.

 

 

ENVIRONMENTAL FACTORS POTENTIALLY AFFECTED

The environmental factors checked below would be potentially affected by this project, involving at least one impact that is a "Potentially Significant Impact" as indicated by the checklist on the following pages. This impact assessment is based on the assumption that PG&E will fully implement all mitigation measures that it has identified as incorporated into its proposed project (see following section). The impact assessment is based on information provided in the Proponent’s Environmental Assessment attached to PG&E’s Application for a Permit to Construct the project, information provided in subsequent communications to the CPUC, site visits and other information sources as cited in this report.

 

Land Use and Planning

 

Transportation/Circulation

 

Public Services

 

Population and Housing

X

Biological Resources

 

Utilities and Service Systems

 

Geological Problems

 

Energy and Mineral Resources

 

Aesthetics

X

Water

 

Hazards

 

Cultural Resources

 

Air Quality

X

Noise

 

Recreation

   

Mandatory Findings of Significance

 

 

Mitigation Measures adopted by the applicant

The following is a summary of mitigation measures proposed by PG&E as a part of the proposed project, the North San Jose Capacity Project

Impact

Mitigation

AIR QUALITY

Training

All personnel working on the project will be trained prior to starting work on methods for minimizing air quality impacts during construction.

Fugitive Dust

Hydroseed or non-toxic soil stabilizers will be applied to all previously graded areas of construction that are inactive for ten days or more.

 

Under dry conditions, all construction areas, unpaved access roads, and staging areas will be watered twice daily, or soil stabilizers will be applied.

 

Sandbags or other erosion control measures will be installed to prevent silt runoff to public roadways.

 

All trucks hauling soil and other loose material will be covered or have at least two feet of freeboard.

 

Construction vehicles will use paved roads to access the construction site wherever possible.

 

Vehicle speeds will be limited to 15 mph on unpaved roads and construction areas, or as required to control dust.

 

Public streets will be cleaned daily with water sweepers if soil is deposited by project activities.

 

All paved access roads, parking areas and staging areas will be swept daily with water sweepers.

 

Exposed stockpiles of soil and other excavated materials will be enclosed, covered, watered, or applied with soil binders, as appropriate.

 

Vegetation will be replanted in disturbed areas as quickly as possible following the completion of construction.

Emissions from Construction Vehicles and Equipment

Carpooling will be encouraged among construction workers through contractor bid specifications and project orientation training for workers.

 

Vehicles used in construction activities will be tuned per the manufacturer’s recommended maintenance schedule, or at least annually thereafter.

 

Vehicle idling time will be minimized (e.g., five minutes maximum).

 

PG&E will employ its standard practices during operations such as minimizing vehicle trips, and keeping vehicles and equipment well maintained.

BIOLOGICAL RESOURCES

Training

All construction personnel working on the project will be trained prior to starting work on methods of minimizing impacts to wildlife and vegetation during construction. Although no impacts to wetlands are expected, workers will be constructing around and over wetland areas; therefore training will also include methods for avoiding impacts to wetlands. Instruction will be ongoing and an educational brochure that explains approved environmental protection measures will be developed in conjunction with the environmental education program.

Vegetation

Areas temporarily impacted during construction of the project will be revegetated. Trees requiring removal to provide conductor clearance will be replaced on-site with lower growing species in accordance with the San Jose Redevelopment Agency’s landscape plan for Zanker Road.

Rare Plants

Following the completion of preconstruction surveys, if it is determined that special status plant species occur within the project area, PG&E will modify the project so as to avoid impacts to identified species. If identified special status plant species cannot be avoided, PG&E will:

  • modify the project so as to minimize impacts to identified species,
  • acquire suitable habitat for identified species within the vicinity of the project,
  • develop a long-term habitat enhancement plan for identified species, and
  • monitor the implementation of and compliance with these mitigation measures.

Burrowing Owls

PG&E will conduct pre-construction surveys for burrowing owls in accordance with CDFG guidelines and federal requirements. Surveys will be performed by a qualified biologist(s) prior to breeding season (before February 1), and no more than 30 days before the start of construction. Areas along the route where burrowing owls have been observed, or areas with mounds, berm, or other suitable ground nesting locations will be surveyed.

 

PG&E will assess the amount of burrowing owl foraging and/or nesting habitat that could be impacted by construction. The acreage involved will be reported to CDFG.

 

All foraging and nesting habitat that could be lost due to construction activities will be calculated and reported to CDFG. This acreage will be mitigated at a 1:1 ratio with either the purchase of habitat credits or the purchase of offsite mitigation land.

 

If construction activities occur during the owl breeding season, and if burrowing owls are observed on or within 250 feet of a project site during preconstruction surveys, a 250-foot protective buffer will be established with the placement of a barrier fence. The fence will remain in place for the duration of the breeding season. The fence integrity will be monitored by a qualified biologist.

 

Based upon pre-construction surveys, PG&E will provide a biological monitor in areas where potential impacts to burrowing owls could occur. A qualified biologist will monitor for the movement of burrowing owls into the construction zone.

Temporary Loss of Wildlife Habitat

Vegetation clearing for construction will be kept to a minimum.

 

In consultation with SCVTA, project impacts within the SCVTA mitigation area could be mitigated by habitat enhancement onsite. Such mitigation may include, but not be limited to, creation of wildlife habitat by successful plant establishment, or habitat replacement offsite. It is anticipated that the placement of one pole within the mitigation area will involve approximately 20 square feet.

Raptors/Migratory Birds

Before the spring breeding season (and prior to start of construction) surveys in construction areas containing suitable habitat for sensitive raptors will be performed. CDFG will review and approve the survey findings.

 

If an active raptor nest is found during the preconstruction survey, a buffer of 250 feet will be maintained.

 

In the event that a nesting raptor is found within the project area, a qualified biological monitor will be provided by PG&E. The monitor will remain onsite during construction activities to ensure no nest abandonment occurs.

 

In the event of a nesting raptor, CDFG will provide authorization for nest removal after the young have been observed foraging.

Cliff Swallow and Barn Owl

A preconstruction survey will be conducted no more than 30 days before the start of construction.

 

Any nest that is found in a preconstruction survey that could be disrupted by the proposed work will be removed before February 15 (i.e., before the swallow colony returns to the nesting site). Once the birds return, removal will be repeated at a frequency necessary to prevent nest completion or until project construction is required.

 

Permits will be obtained to destroy occupied nests. Swallow nests that are intact are assumed to be occupied. To remove or to destroy such a nest between February 15 and August 31 requires a permit from USFWS. Any eggs removed from nests will be taken to a wildlife rescue group in the Santa Clara County region.

Tree Trimming/Removal

If active nests of sensitive bird species or raptors are observed in urban trees during preconstruction surveys, the USFWS and CDFG will be notified, and PG&E will coordinate avoidance and/or mitigation measures developed with the agencies as appropriate.

 

Trees and shrubs will be replanted as specified above under "Vegetation."

Electrocution

Power line design will be "raptor safe" to minimize or eliminate raptor electrocution according to APLIC 1996 guidelines.

Predation

Impacts of predation of wildlife in general are estimated to be insignificant with the implementation of mitigation measures. Impacts of predation on burrowing owls could be reduced to less than significant. Mitigation measures could include, but not be limited to, the use of nixalite to discourage perching raptors, installation of artificial burrows to provide increased escape cover, and habitat enhancement developed in conjunction with the resource agencies.

CULTURAL RESOURCES

Training

Prior to the initiation of construction of ground disturbing activities, all construction personnel will receive environmental training. This training will include discussion of the possibility of buried cultural remains, and the procedure, detailed below, that is to be followed if buried cultural remains are encountered during construction.

Archeological Resources

Prior to the initiation of construction or ground disturbing activities for Nortech substation site, subsurface exploration will be conducted to determine the presence or absence of buried site deposits. Should a buried, subsurface archaeological deposit be encountered, further research will be conducted to determine the depth, size, integrity and potential eligibility of the site for the California or National Register of Historic Places.

 

During construction and operations, personnel and equipment will be restricted to areas surveyed for archaeological resources.

 

If project plans change to include unsurveyed areas, additional archaeological surveys will be conducted.

Cultural and Historic Resources

If buried cultural materials, including prehistoric and historic resources, are discovered within the project area:

1. Work in the immediate area of the find will be halted.

2. PG&E’s archaeologist will be notified.

3. PG&E’s archaeologist will identify the find, then make the necessary plans for treatment of the find.

4. PG&E’s archaeologist will evaluate the find and if it is found to be "important" per CEQA (Appendix K), determine appropriate mitigation measures.

Human Remains

If buried human remains are encountered during construction:

1. Work will halt in that area.

2. PG&E’s archaeologist and the coroner will be immediately notified.

3. If the remains are determined to be Native American, then the Native American Heritage Commission (NAHC) will be notified within 24 hours as required by public resources code 5097. The NAHC will notify designated Most Likely Descendants who will provide recommendations for the treatment of the remains within 24 hours. The NAHC will mediate any disputes regarding treatment of remains.

ENERGY AND UTILITIES

Overhead Utilities

Representatives from all aerial utilities crossed by the project will be requested to be on-site for monitoring during construction.

 

Where the project crosses or is adjacent to live, overhead electric lines, signs will be installed warning equipment operators of the presence of the line.

 

PG&E will locate poles and conductors at a safe distance from intersecting transmission line structures, conductors, and telephone wires in accordance with the distances specified in the California Public Utilities Commission (CPUC) General Order No. 95.

De-energization of Lafayette Street Distribution Line

PG&E will work with the City of Santa Clara’s Electric Utilities Department to temporarily de-energize the distribution line along Lafayette Street during construction. The following actions will be taken to minimize service interruptions along this section of the Kifer – Nortech power line route:

1. Where feasible, customers will receive electric service from alternate sources.

2. Temporary distribution connections and construction will be implemented to maintain service during construction.

3. Sections of the distribution lines will be isolated with temporary switches that will interrupt service to the least number of customers.

4. If an unavoidable outage is anticipated, affected residents and businesses will be notified of the outage by personal contact—either by phone or by a notice posted on the door of the residence or business.

Underground Utilities and Potential Service Disruption

During construction, before any ground disturbance occurs, Underground Service Alert (USA) will be contacted to verify the location of existing underground utilities, in order to ensure that they are avoided.

 

PG&E’s distribution gas lines will be located by PG&E technicians.

 

Representatives from non-PG&E underground utilities will be notified in advance of construction that construction will be occurring near their lines.

 

The location of non-PG&E utilities will be provided by representatives from the utility.

 

Representatives from all buried utilities crossed by the project will be requested to be on-site for monitoring during construction.

GEOLOGY, SOILS, AND PALEONTOLOGY

Flooding Potential from Subsidence

To avoid potential flooding, the Nortech Substation site will be raised to an elevation of approximately six feet with 20,000 cubic feet of engineered fill. This will reduce or eliminate potential tidal flooding increased by ground subsidence.

Soft or Loose Soils and High Water Table

Casing, sheet piling, or other construction measures appropriate for running sands and soft clay and silt will be implemented where necessary during construction of equipment foundations at the substation site.

 

Timber mass will be used, if needed, for construction equipment access over saturated soils.

 

Over-excavated and replacement of near-surface soft or loose soils will be implemented where necessary to eliminate or minimize impacts from settlement.

 

Ground improvement or deep footings (piers or piles) will be used where determined as necessary by design-level geotechnical investigations.

Expansive Soils

The presence of expansive soils at the substation site will be evaluated in the design-level geotechnical investigations.

 

Over-excavation and replacement with engineered fill or other ground treatment will be implemented where necessary to eliminate or minimize impacts from expansive soils.

Contaminated Soils

If contamination is suspected in a construction area because of information reviewed in regulatory agency files or other documents, then soil will be tested as needed prior to drilling (see Section 9: Hydrology and Water Quality). Chemicals will be analyzed that are suspected to be present (e.g., petroleum products at a gas station) and results evaluated to assure that work can proceed safely and in a manner that is protective of the environment. If soil is found to be degraded to the extent that worker exposure is a potential concern, then workers will follow a Health and Safety Plan prepared in accordance with OSHA 29 CFR 1910.120.

Erosion

Standard measures will be followed during construction to protect surface water, where needed. These measures may include placing straw bales or silt fences. Dust control practices will be implemented if needed.

Paleontology

A qualified paleontological monitor will be on site at the substation site during any earth moving activities that penetrate the ground surface to a depth greater than six feet.

 

The paleontological monitor will examine the soil or rock periodically for microfossils by wet or dry screening. If important fossil remains are found as a result of screening, samples of sufficient size to generate a representation of the organisms preserved will be collected and processed.

 

If significant large fossil remains are uncovered during earth-moving activities the paleontological monitor will divert earth-moving equipment away from the site until he or she has examined the remains to determine if they are significant. At the monitor’s discretion, on-site construction equipment may be employed to assist in the removal of fossil remains to reduce any delay in construction.

 

Fossils recovered from the field or by processing will be prepared, identified, and along with the accompanying field notes, maps, and photographs, accessioned into the collections of the Museum of Paleontology, University of California, Berkeley.

Strong Ground Shaking

The effects of potential strong ground shaking will be evaluated in the design, selection, and anchoring or equipment and structures.

 

Flexible bus connections and extra slack in underground cables will be provided to accommodate differential motions.

 

Equipment for the substation will be purchased using the seismic qualification requirements in IEEE 693.

Liquefaction

A site-specific assessment will be conducted to determine the presence or absence of liquefiable deposits beneath the substation site and, if present, whether liquefaction will lead to unacceptable levels of permanent ground deformation. Mitigation to prevent liquefaction-related hazards will include design-level geotechnical investigations, including test borings at selected locations and analysis of existing data to analyze the possibility of liquefaction, and to provide input for engineering design to mitigate the effects where needed. If required, pile foundations or ground improvement of liquefiable zone, flexible bus connections, and/or extra slack in underground cables will be incorporated to allow ground deformations without damage.

HYDROLOGY AND WATER QUALITY

Surface Water Quality

Standard measures will be followed during construction to protect surface water, where needed. These measures may include placing straw bales or silt fences.

Groundwater

The RWQCB guidelines, or an equivalent protective procedure approved by the RWQCB, will be followed for power line poles built on piles in landfills. This may involve installing a conductor casing outside of the piles to seal off the shallow contaminated zone or other equivalent method.

 

If drilled piers are needed in areas with shallow contamination, soil cuttings and dewatering fluids will be tested and disposed of in accordance with federal, state, and local regulations.

 

If groundwater is pumped during subsurface construction, it will be discharged in compliance with the San Francisco Bay Basin Water Quality Control Plan (SFRWQCB, June 21, 995).

 

If groundwater quality is found to be degraded during pre-construction testing, the San Francisco RWQCB will be contacted to evaluate if it can be discharged to a local storm drain.

 

If the water cannot be released directly to a storm drain, the San Jose Wastewater Pollution Control Plant (WPCP) will be contacted to evaluate if it can be discharged to the sanitary sewer for treatment at the WPCP.

 

If the water cannot go to the sanitary sewer without pretreatment, then it will be pretreated as needed with a mobile treatment unit and discharged to the sanitary sewer for final treatment by the WPCP. Treatment may include carbon filtration or other methods, depending on the contaminants present and the required level of pretreatment.

 

If contamination is suspected in a construction area because of information reviewed in regulatory agency files or other documents, then soil and groundwater will be tested as needed prior to drilling.

 

Chemicals will be analyzed that are suspected to be present (e.g., petroleum products at a gas station) and results evaluated to assure that work can proceed safely and in a manner that is protective of the environment. If groundwater or soil are found to be degraded to the extent that worker exposure is a potential concern, then workers will follow a Health and Safety Plan prepared in accordance with OSHA 29 CFR 1910.120.

Surface Water Quality

Standard measures will be followed during construction to protect surface water, where needed. These measures may include placing straw bales or silt fences.

Flooding

To provide a measure of safety during potential periods of flooding during operations, the site will be engineered to provide a safe work environment at all times. Electrical equipment will be located at elevations that are expected to provide continuous, safe operation even during 100-year flood.

Training

Workers may wear personal protective gear and public access to the construction area may area be temporarily restricted during excavation or drilling activities. Work will be completed in compliance with applicable federal, state, and local regulations.

LAND USE

Property Owner Notification

At least two weeks prior to constructing the substation and power lines, PG&E will give advance notice of the construction and anticipated disturbances to property owners, businesses, and residents potentially affected by construction activities. PG&E will provide this notice by: (1) posting bulletins in neighborhoods that would be affected by construction activities; and (2) publishing notices in local newspaper.

Public Affairs

PG&E will appoint a public affairs representative to act as the public liaison or point of contact before, during, and after constructing the proposed project. The representative will be available to discuss public concerns or questions. Procedures for reaching the public affairs representative via telephone or in person will be included in notices distributed to the public as stated above.

NOISE

Construction Noise

As indicated in the Noise Element of San Jose and Santa Clara, use of available noise suppression techniques will be employed. In order to minimize the impact of construction noise on nearby residences and offices, the contractor will shield compressors and other small stationary equipment, use "quiet" equipment, and face equipment exhaust away from noise sensitive buildings.

 

The contractor will route truck traffic away from noise sensitive buildings. In cases where construction will occur within 100 feet of residences or businesses, particularly if these buildings will be exposed to construction noise for more than one day, it may be necessary to use temporary sound barriers or sound curtains to minimize the noise intrusion into these buildings. These methods may be necessary particularly if the other noise reduction methods are not effective or possible.

Operations Noise

Operation of the transformers at reduced load at night will occur in order to meet the City of San Jose Noise Ordinance and long-term goal of the General Plan at the property line.

PUBLIC HEALTH AND SAFETY

Electric and Magnetic Fields (EMF)

Poles will be installed at a clearance to reduce EMF strength at ground level.

 

The phasing on the Trimble – Nortech 115 kV power line will be arranged for minimum magnetic field at the edge of the right-of-way. The phasing will be CBA (top, middle, bottom) to cross-phase with the phasing on the Newark – Trimble 115 kV power line.

 

The equipment spacing within the substation area will be compacted. As a result, the equipment will fit in a smaller area than a conventional substation. This compaction will reduce the magnetic field at the property line by increasing the distance between equipment and property line.

Fire

In accordance with the 1994 Uniform Fire Code Section 1109.5, PG&E will inform its construction and maintenance workforce that "Lighted matches, cigarettes, cigars or other burning objects shall not be discarded in such a manner that could cause ignition of other combustible material."

 

Once completed, the Nortech Substation will be fitted with an automated central alarm system which will immediately alert PG&E in the unlikely event of a fire at the substation.

 

PG&E will adhere to the CPUC’s Rules and Regulations, General Order No. 95, Rule 35 concerning the requirements for maintaining appropriate tree clearances from power line facilities.

 

Along Zanker Road, new tree types will be taken into account and selected (for a maximum height of 30 feet) in part to minimize interference with power lines.

 

PG&E will conduct routine surveillance of tree heights to ensure that safety and operation requirements are adhere to.

Hazardous Materials and Wastes

The Nortech Substation is designed to prevent releases of hazardous materials and wastes.

Airports

PG&E will notify FAA of the project using FAA’s form "Notice of Proposed Construction or Alteration." FAA will exercise its discretionary authority in determining whether the obstruction will in fact be a hazard after reviewing all of the relevant factors. During this process, the public will be made more aware of the proposed obstruction through the notice, and will be given an opportunity to present relevant comments. PG&E will follow the recommendations FAA proposes in the notice. This will reduce any impacts to less than significant.

TRAFFIC

Traffic Control

PG&E will adhere to the guidelines in the California Joint Utility Traffic Control Committee Work Area Protection and Traffic Control Manual, August 1996.

 

All traffic control measures will be designed in accordance with Santa Clara and San Jose city plans (both cities have adopted the traffic control measures in Chapter 5 of the 1993 Caltrans Traffic Manuals).

Construction Traffic

No construction activities on the power lines will occur along streets during the heavy commute hours before 9:00 a.m. and after 3:00 p.m. on weekdays.

 

The timing and route selection for movement of heavy equipment and truck traffic will be coordinated with Santa Clara and San Jose Public Works Departments to minimize impacts.

 

Coordination will occur between PG&E and the California Highway Patrol and Caltrans to install safety nets and string lines across Highway 101 and State Route 237 (at both the Kifer – Nortech and Trimble – Nortech crossings) during low traffic in the early morning hours.

Lane/Sidewalk Closures

Construction activities will occur on road shoulders or in non-traffic lanes where available to avoid unnecessary lane closures.

 

If the temporary closure of sidewalks or bicycle lanes is necessary during construction, pedestrian and bicycle access will be maintained adjacent to the construction zone, and separate from traffic.

 

Care will be taken during construction to avoid blocking ADA sidewalk ramps.

 

Required permits for temporary lane closures will be obtained from the Cities of Santa Clara and San Jose.

 

Coordination will occur between PG&E and the San Jose Public Works Department to minimize the impacts of lane closure during street widening construction along Zanker Road.

 

Coordination will occur between PG&E and the Santa Clara and San Jose Public Works Department to minimize conflicts with the design, location, and construction of other projects.

 

Coordination will occur between PG&E and the Santa Clara Traffic Engineering Division to adjust traffic signal timing to accommodate and help alleviate traffic congestion resulting from the project.

Bus Routes

The Santa Clara Valley Transportation Authority will be notified at least 72 hours in advance of any construction adjacent to bus stops.

 

The Santa Clara Unified School District will be notified at least two weeks prior to construction to coordinate construction scheduling adjacent to school bus stops.

VISUAL RESOURCES

Zanker Road Views

PG&E will contribute $500,000 toward the implementation of the San Jose Redevelopment Agency’s comprehensive street tree landscaping plant for the Zanker Road corridor. This plan will ultimately provide a consistent and unified landscaping theme along both sides of Zanker Road. This financial contribution will provide a mechanism to restore and enhance the diminished visual unity of the corridor that would result from removal of existing poplar and redwood trees. Implementation of the Zanker Road landscape plan will also provide additional visual screening and focal points that can contribute to reducing the perceived visual dominance of the new poles. In addition to its financial contribution, PG&E will also assist with the timely and efficient implementation of the plan.

SOURCE: Proponent Environmental Assessment, PG&E, 1998

 

 

ADDITIONAL Mitigation Measures required by the cpuc

Water

Impact: Construction activities have the potential to create silt that could be deposited in storm drains and on road surfaces if rain occurs during the construction period.

Mitigation Measure: The following mitigation measure would reduce the potential impact of surface water discharge to a less-than-significant level.

Measure IV.c.1. If construction is scheduled during the rainy season, PG&E shall employ best construction management practices to prevent discharges of silt and other substances from construction into storm drains. PG&E shall develop and implement a plan to control excavated soils and runoff, specifying practices such as the use of detention basins, straw bales, silt fences or other deterrents, and site clean-up procedures and practices to minimize contact of construction materials with stormwater. PG&E shall file a copy of the plan with the CPUC for review and final approval and shall certify compliance with this measure in progress reports to the CPUC.

Noise

Impact: Construction activities have the potential to generate noise that affects nearby residents.

Mitigation Measure: The following mitigation measures would reduce the potential noise impacts to a less-than-significant level:

Mitigation Measure X.a-1: To reduce the construction noise effects, PG&E shall ensure that noisy construction activities at the substation site and near residences along the power line route shall be limited to, as much as practicable, the least noise-sensitive times of day and week (e.g., 7:00 a.m. to 6:00 p.m., Monday through Friday, not including federal holidays, in residential areas), unless there are overriding traffic and/or power interruption concerns.

If such activities occur, PG&E shall notify the CPUC project manager of noisy construction activities in residential areas outside the aforementioned hours within seven days. Written variances for Mitigation Measure Xa-1 may be required if such activities outside the agreed upon hours are disturbing residences near PG&E construction activities.

Mitigation Measure X.a-2: If concerns are raised about potential vibration from project construction, PG&E shall respond by informing those individuals about the nature, locations and schedule of construction, and by minimizing vibration-causing construction activities to the extent practicable.

Monitoring Action: PG&E shall monitor activities at the site and document compliance with measures X.a-1 and X.a-2.

PG&E shall provide the CPUC mitigation monitor with documentation of compliance actions in regular progress reports.

PG&E shall inform CPUC of such concerns raised by the public and of PG&E actions in response.

 

 

 

Biological Resources

Impact: Construction activities have the potential to directly impact burrowing owls or their nests and nesting raptors.

Mitigation Measure: The following mitigation measures would reduce the potential adverse impacts to burrowing owls and nesting raptors to a less-than-significant level:

Mitigation Measure VII-a: To avoid direct impact to any burrowing owl or nest, conduct a pre-construction survey no more than 30 days prior to construction according to the Burrowing Owl Survey Protocol and Mitigation Guidelines (Burrowing Owl Consortium 1993). If owls are found to be using the site and avoidance is not feasible, a passive relocation effort (displacing the owls from the site) may be conducted, subject to the approval of the California Department of Fish and Game (CDFG).

For habitat losses, other project sites within the San Jose Urban Service Area have mitigated for impacts by applying a 1:1 acreage replacement ratio, i.e., off-site purchase of land, as compensation for the impact of replacing or providing substitute resources or environments (Guidelines, Section 15370). This type of mitigation is currently seen as less effective than City-wide conservation planning; the plan currently under development by the city will more equitably and logically acquire and allocate conservation land.

Participation by PG&E in the city plan would likely involve paying a fee based on the vacant land acreage to be developed. No specific participation fee has been proposed at this time. It appears that the fee would be considerably less than the cost of purchasing replacement habitat. PG&E would be considered to have mitigated the impacts on burrowing owl habitat with a payment to this program of a per acre fee based on the entire acreage of the site. PG&E participation in the plan, when promulgated in 1999, would constitute full mitigation under CEQA for impacts to burrowing owls. Alternatively, if the city plan is not promulgated in a timely manner, or if PG&E elects not to participate in the plan, PG&E would carry out the following mitigation measures:

Mitigation Measure VII-a-1: PG&E will assess the amount of burrowing owl foraging and/or nesting habitat that could be impacted by construction. The acreage involved will be reported to CDFG. All foraging and nesting habitat that could be lost due to construction activity will be mitigated at a 1:1 ratio with either the purchase of habitat credits or the purchase of offsite mitigation land.

Monitoring Action: PG&E shall monitor activities at the site and document compliance with measure VII-a-1.

PG&E shall certify compliance with this measure in scheduled progress reports to the CPUC.

Responsibility: PG&E shall submit a copy of the pre-construction survey report and ensure compliance with those recommendations.

Timing: Before on-site work begins, PG&E shall provide the CPUC mitigation monitor with verification that a pre-construction survey has been completed.

Mitigation Measure VII-b: Prior to the breeding season and project construction, a survey will be conducted in areas containing suitable raptor and sensitive bird habitat. Should an occupied nest be detected, the project proponent will consult with the CDFG to determine an appropriate means for reducing impacts to nesting birds. Suitable measures to avoid impacts could include creation of a 250-foot buffer zone and avoidance of potentially disturbing activities until nestlings have left the site, but could include additional measures. Removal of any raptor nests will be reviewed with the CDFG.

Monitoring action: PG&E shall monitor activities at the site and document compliance with measure VII-b.

PG&E shall certify compliance with this measure in scheduled progress reports to the CPUC.

Responsibility: PG&E shall submit a copy of the pre-construction survey report and ensure compliance with those recommendations.

Timing: Before on-site work begins, PG&E shall provide the CPUC mitigation monitor with verification that a pre-construction survey has been completed.

 

 

DETERMINATION

(To be completed by the Lead Agency.)

On the basis of this initial evaluation:

I find that the proposed project COULD NOT have a significant effect on the

 

environment, and a NEGATIVE DECLARATION will be prepared.

 

I find that although the proposed project could have a significant effect on the environment, there will not be a significant effect in this case because the mitigation measures described on an attached sheet have been added to the project. A

 

NEGATIVE DECLARATION will be prepared.

X

I find that the proposed project MAY have a significant effect on the environment,

 

and an ENVIRONMENTAL IMPACT REPORT is required.

 

I find that the proposed project MAY have a significant effect(s) on the environment, but at least one effect 1) has been adequately analyzed in an earlier document pursuant to applicable legal standards, and 2) has been addressed by mitigation measures based on the earlier analysis as described on attached sheets, if the effect is a "potentially significant impact" or "potentially significant unless mitigated." An ENVIRONMENTAL IMPACT REPORT is required, but it must analyze only the

 

effects that remain to be addressed.

 

I find that although the proposed project could have a significant effect on the environment, there WILL NOT be a significant effect in this case because all potentially significant effects (a) have been analyzed adequately in an earlier EIR pursuant to applicable standards and (b) have been avoided or mitigated pursuant to that earlier EIR, including revisions or mitigation measures that are imposed upon the proposed project.

 
   

 

 

 

/s/

Natalie Walsh, Program Manager Date

Analysis Branch

Energy Division

California Public Utilities Commission

 

 

TOP
Forward to Next Section
(Land Use and Planning)
Back to North San Jose Capacity Project Main Page PG&E Substation Projects Main Page CPUC Home Page