Change List for this Rule


Original Version

Rule 94

 

94    New Rule

  

 

Strikeout and Underline Version

Rule 94

 

94    Antennas

 

94.1    Definition (See Rule 20.0)

 

94.2    Maintenance and Inspection (See Rules 31.1 and 31.2 )

 

94.3    General Requirements

 

On joint use poles supporting Class T, C, L or H Circuits (up to 50 kV), the following shall apply:

 

A.    Antennas shall meet the requirements of Class C equipment, unless otherwise specified in this rule.

 

B.    All associated elements of the antenna (e.g. associated cables, messengers, and pole line hardware) shall meet the requirements of Class C circuits.

 

94.4   Clearances

 

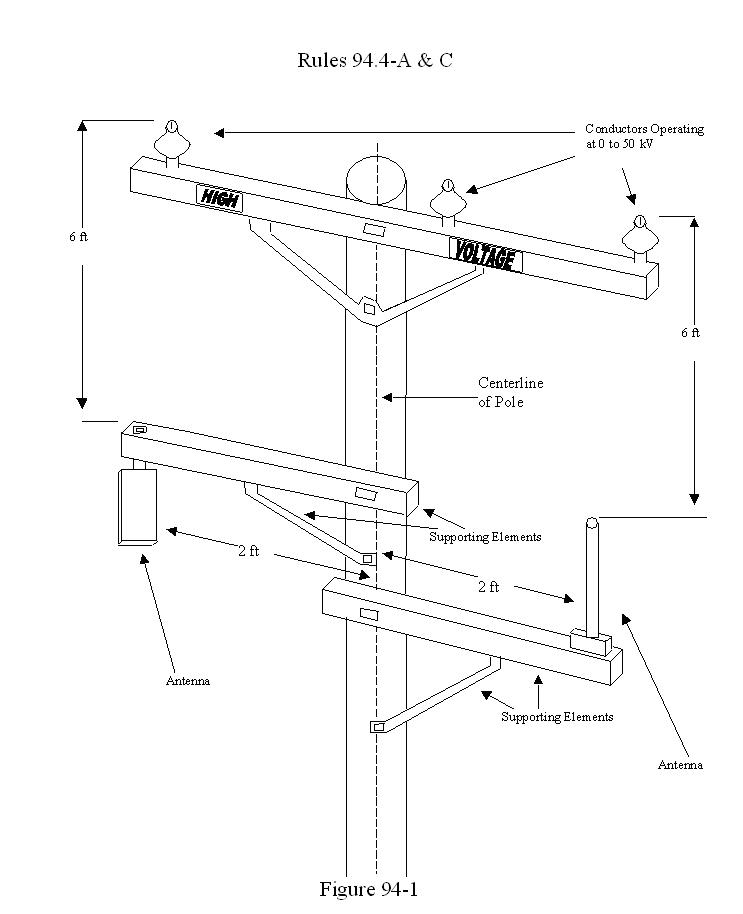
A.    Antennas and supporting elements (e.g. crossarms, brackets) shall maintain a vertical clearance of 6 feet from Supply Conductors operating at 0 – 50kV.  (See Figure 94-1)

 

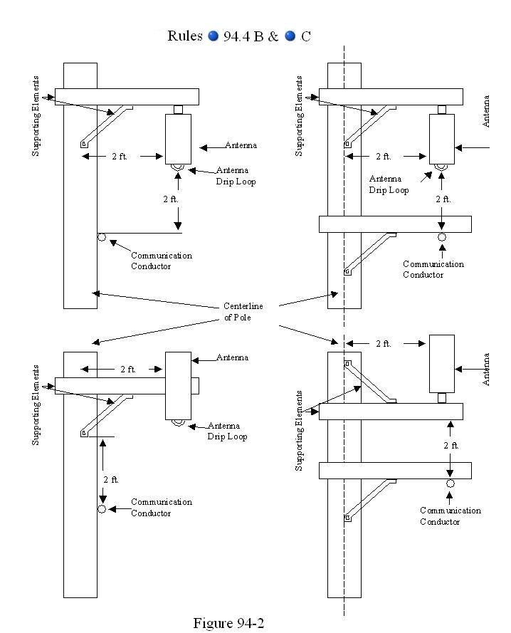
B.    Antennas and supporting elements (e.g. crossarms, brackets) shall maintain a 2 ft. vertical separation from communication conductors and equipment.  (See Figure 94-2)

 

C.    Antennas shall maintain a 2 ft. horizontal clearance from centerline of pole.  (See Figures 94-1 and 94-2)

 

D.    Antennas shall have a vertical clearance above ground as specified in Table 1, Column B, Cases 1 to 6a.

 

 

 

 

94.5    Marking

 

A.    No antenna owner or operator shall install an antenna on a joint use pole unless such installation is subject to an agreement with the pole owner(s) that includes marking requirements that are substantially similar to and achieve at least the same safety standards as those set forth in Appendix H to GO 95.

 

B.    Joint use poles shall be marked with a sign for each antenna installation as follows:

 

(1)    Identification of the antenna operator

 

(2)    A 24-hour contact number of antenna operator for Emergency or Information

 

(3)    Unique identifier of the antenna installation.

 

94.6    De-energizing

No antenna owner or operator shall install an antenna on a joint use pole unless such installation is subject to an agreement with the pole owner(s) that includes de-energizing protocols that are substantially similar to and achieve at least the same safety standards as those set forth in Appendix H to GO 95.

 

Exceptions:

 

Antennas utilized by utilities for the sole purpose of operating and monitoring their supply system are exempt from this rule and shall only meet the construction and clearance requirements of supply equipment.

 

Antennas embedded in or attached to communication cables and messengers are exempt from this rule and shall only meet the construction requirements for Class C circuits.

 

 

 

Final Version

Rule 94

 

94    Antennas

 

94.1    Definition (See Rule 20.0)

 

94.2    Maintenance and Inspection (See Rules 31.1 and 31.2)

 

94.3    General Requirements

 

On joint use poles supporting Class T, C, L or H Circuits (up to 50 kV), the following shall apply:

 

A.    Antennas shall meet the requirements of Class C equipment, unless otherwise specified in this rule.

 

B.    All associated elements of the antenna (e.g. associated cables, messengers, and pole line hardware) shall meet the requirements of Class C circuits.

 

94.4   Clearances

 

A.    Antennas and supporting elements (e.g. crossarms, brackets) shall maintain a vertical clearance of 6 feet from Supply Conductors operating at 0 – 50kV.  (See Figure 94-1)

 

B.    Antennas and supporting elements (e.g. crossarms, brackets) shall maintain a 2 ft. vertical separation from communication conductors and equipment.  (See Figure 94-2)

 

C.    Antennas shall maintain a 2 ft. horizontal clearance from centerline of pole.  (See Figures 94-1 and 94-2)

 

D.    Antennas shall have a vertical clearance above ground as specified in Table 1, Column B, Cases 1 to 6a.

 

 

Rule 94.4-A

Rule 94.4-C

 

 

Rule 94.4-B

Rule 94.4-C

 

 

94.5    Marking

 

A.    No antenna owner or operator shall install an antenna on a joint use pole unless such installation is subject to an agreement with the pole owner(s) that includes marking requirements that are substantially similar to and achieve at least the same safety standards as those set forth in Appendix H to GO 95.

 

B.    Joint use poles shall be marked with a sign for each antenna installation as follows:

 

(1)    Identification of the antenna operator

 

(2)    A 24-hour contact number of antenna operator for Emergency or Information

 

(3)    Unique identifier of the antenna installation.

 

94.6    De-energizing

No antenna owner or operator shall install an antenna on a joint use pole unless such installation is subject to an agreement with the pole owner(s) that includes de-energizing protocols that are substantially similar to and achieve at least the same safety standards as those set forth in Appendix H to GO 95.

 

Exceptions:

 

Antennas utilized by utilities for the sole purpose of operating and monitoring their supply system are exempt from this rule and shall only meet the construction and clearance requirements of supply equipment.

 

Antennas embedded in or attached to communication cables and messengers are exempt from this rule and shall only meet the construction requirements for Class C circuits.