Previous Rule Change

Main Page

Resolution & Decision Main Page

Change List for this Rule

Search Decision Number 15-01-005

Decision Number 15-01-005

Next Rule Change

 

Original Version

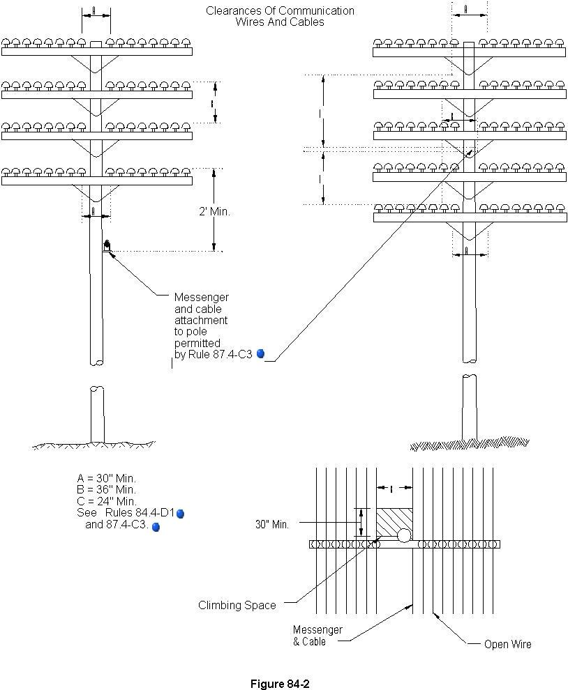
Figure 84-2

  

 

Final Version

Figure 84-2