Original Version
Rule 84.4-D1
84.4-D1)
Conductors Supported On Crossarms: The
15-inch minimum clearance from center line of pole specified for communication
conductors supported on crossarms may be reduced under the following
conditions:
For open wire toll
and other open wire line conductors not used for exchange or local
distribution, a clearance of not less than 9 inches from center line of pole
may be used;
For open wire
exchange or local distribution conductors which were originally installed as
toll line conductors, a clearance of not less than 9 inches may be used
provided such exchange conductors do not carry more than 160 volts and 50 watts
and a clearance of not less than 15 inches from center line of pole shall be
obtained when appreciable reconstruction of such lines is undertaken;
For open wire and
local exchange and local distribution conductors in rural districts, the
conductor clearance from center line of pole maybe not less than 9 inches
provide voltage of such conductors is not more than 160 volts, power
transmitted does not exceed 50 watts, the clearance of not less than 9 inches
shall apply only to conductors supported on a crossarm in the pole top position
and no conductors are supported below such crossarms except supply service
drops of clearance crossarms. This provision for lines in rural districts is
intended to permit the use of a related buck arm, in which the climbing space
shall conform to the requirements of Rule 84.7-B ;
Cables or messengers
may be attached to opposite sides of pole and have clearances less than 15
inches from center line of pole where placed 2 feet or more below the level of
the lowest communication conductors supported on crossarms;
Cables or messengers may have clearances less than 15 inches
from center line of pole where placed between crossarms or less than 2 feet below the level of the lowest
commumcation conductor supported on crossarms provided, for climbing space
purposes, such cables are placed on one side of pole only and any conductor
(supported by a crossarm and on the opposite side of pole) which is within 36
inches vertical may from the level of the cable or messenger is not less than
24 inches (if an exchange conductor) or 18 inch (if a toll conductor)
horizontally from the vertical plane of such cable or messenger. (See App. G,
85.)
Strikeout and Underline Version
Rule 84.4-D1
84.4-D1)
Conductors Supported On Crossarms: The
15-inch minimum clearance from the center line of the pole
specified for communication conductors supported on crossarms may be reduced
under the following conditions: For open wire toll
and other open wire line conductors not used for exchange or local
distribution, a clearance of not less than 9 inches from center line of pole
may be used; For open wire
exchange or local distribution conductors which were originally installed as
toll line conductors, a clearance of not less than 9 inches may be used
provided such exchange conductors do not carry more than 160 volts and 50 watts
and a clearance of not less than 15 inches from center line of pole shall be
obtained when appreciable reconstruction of such lines is undertaken;
For open wire and
local exchange and local distribution communication conductors in
rural districts, the conductor clearance from center line of pole shall
not be maybe not less than 9 inches provide voltage of such
conductors is not more than 160 volts, power transmitted does not exceed 50
watts, the clearance of not less than 9 inches shall apply only to conductors
supported on a crossarm in the pole top position and no conductors are
supported below such crossarms except supply service drops of clearance
crossarms.
This clearance
shall apply only to communication conductors under the following conditions:
(1) When supported on a crossarm in the pole top position, and
(2) When
no conductors are supported below such crossarms except supply service drops on
clearances crossarms.
This provision for
lines in rural districts is intended to permit the use of a related buck
arm, in which the climbing space shall conform to the requirements of Rule 84.7
-B ; Cables or
messengers may be attached to opposite sides of pole and have clearances less
than 15 inches from center line of pole where placed 2 feet or more below the
level of the lowest communication conductors supported on crossarms;
To maintain climbing space, cables or
messengers may have clearances less than 15 inches from center line of pole
under the following conditions:
(1) When placed between crossarms, or
(2) When placed less than 2
feet below the level of the lowest communication conductor supported on
crossarms.
where placed between crossarms or less than 2 feet below the level of the lowest
communication conductor supported on crossarms provided, for climbing space
purposes, such These cables or messengers are to be
placed on one side of the pole only and. Any conductor (supported
by on a crossarm and on the opposite side of the pole)
which that is within 36 inches vertical may from the level of
the cable or messenger shall be at least is not less than 24 inches
(if an exchange conductor) or 18 inch (if a toll conductor)
horizontally from the vertical plane of such cable or messenger. (See App.
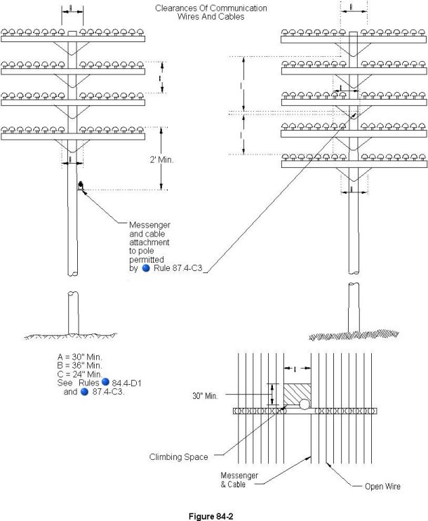
G, 85. Fig 84-2)

Final Version
Rule 84.4-D1
84.4-D1)
Conductors Supported On Crossarms: The
15-inch minimum clearance from the center line of the pole
specified for communication conductors supported on crossarms may be reduced
under the following conditions:
For communication conductors, the conductor clearance from center line of pole shall
not be less than 9 inches
This clearance
shall apply only to communication conductors under the following conditions:
(1) When supported on a crossarm in the pole top position, and
(2) When
no conductors are supported below such crossarms except supply service drops on
clearances crossarms.
This provision is intended to permit the use of a related buck
arm, in which the climbing space shall conform to the requirements of Rule 84.7-B;
To maintain climbing space, cables or
messengers may have clearances less than 15 inches from center line of pole
under the following conditions:
(1) When placed between crossarms, or
(2) When placed less than 2
feet below the level of the lowest communication conductor supported on
crossarms.
These cables or messengers are to be placed on one side of the pole only. Any conductor on a crossarm on the opposite side of the pole that is within 36 inches vertical may from the level of the cable or messenger shall be at least is not less than 24 inches or 18 inch horizontally from the vertical plane of such cable or messenger. (See Fig 84-2)
